Tata központjához közel, panorámás, jó elosztású lakás eladó!
Tata kedvelt, központhoz közeli részén eladó egy 3. emeleti, klímás, 2 szoba + hallos lakás, amelynek nappalijából csodálatos kilátás nyílik a Vértes vonulataira. A lakás jó elosztású, tágas tereinek köszönhetően ideális otthon lehet egyedülállóknak, pároknak vagy kis családoknak is.
A rendezett, tiszta lépcsőház kaputelefonos beléptetővel rendelkezik, a lakásban pedig műanyag nyílászárók redőnnyel és szúnyoghálóval felszerelve gondoskodnak a praktikumról és a védelemről.
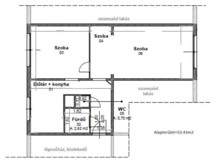
A fürdőszobában kád található, a WC külön helyiségben kapott helyet.
A lakás felújítandó állapotú, így új tulajdonosa saját ízlése szerint alakíthatja.
A fűtés központi gázkazánról megoldott, a melegvizet villanybojler biztosítja, a közös költség mindössze 20.000 Ft.
A ház mögött ingyenes parkolás érhető el az utcán.
Az ingatlan infrastruktúrálisan kiváló helyen található – iskola, óvoda, boltok, gyógyszertár és buszmegálló is néhány perc sétára elérhető.
Irodánkban teljes körű pénzügyi és jogi tanácsadással állunk ügyfeleink rendelkezésére, valamint segítünk kihasználni a 3%-os Otthonstart hitelprogram nyújtotta lehetőségeket is.
Pompás panoráma, Vértesi varázs!
eladolakasTata
Alaprajzok

Az ingatlan jellemzői
Alapadatok
- Ingatlantípus
- Lakás
- Státusz
- Eladó
- Irányár
- 41 900 000 Ft
- Város
- Tata
- Városrész
- Tóváros
Méretek
- Alapterület (m²)
- 53 m²
Helyiségek
- Szobák
- 2
- Fürdő
- 1
- WC
- 1
- Szintek száma
- 3
Minőség és állapot
- Állapot
- Felújítandó
- Épület állapota
- Jó állapotú
- Homlokzat állapota
- Jó állapotú
- Lépcsőház állapota
- jo_allapotu
- Szerkezet
- Panel
- Lépcsőház
- Zart
Komfort és felszereltség
- Fűtés
- Gázkazán
- Hűtés
- Klíma
- Megközelíthetőség
- Főúthoz közel
Környezet és megjelenés
- Tájolás
- DK
- Nyílászárók típusa
- redony,muanyag
- Kilátás
- Hegyekre nezo
- Terasz / Erkély
- Nincs
- Konyha
- Szeparált konyha
Státusz
- Költözhetőség
- Azonnal költözhető
Egyéb
- Jelmondat
- Pompás panoráma, Vértesi varázs!