Mályva Ikerház – Prémium otthon csendes kertvárosi környezetben
Tatabánya egyik legkedveltebb, nyugodt kertvárosi részén megépülő Mályva Ikerház azok számára kínál ideális választást, akik modern, energiatakarékos és igényes otthont keresnek kompromisszumok nélkül.
A kivitelezést profi, megbízható beruházó és kivitelező csapat végzi, akiknek több sikeres referencia projektje megtalálható a térségben.
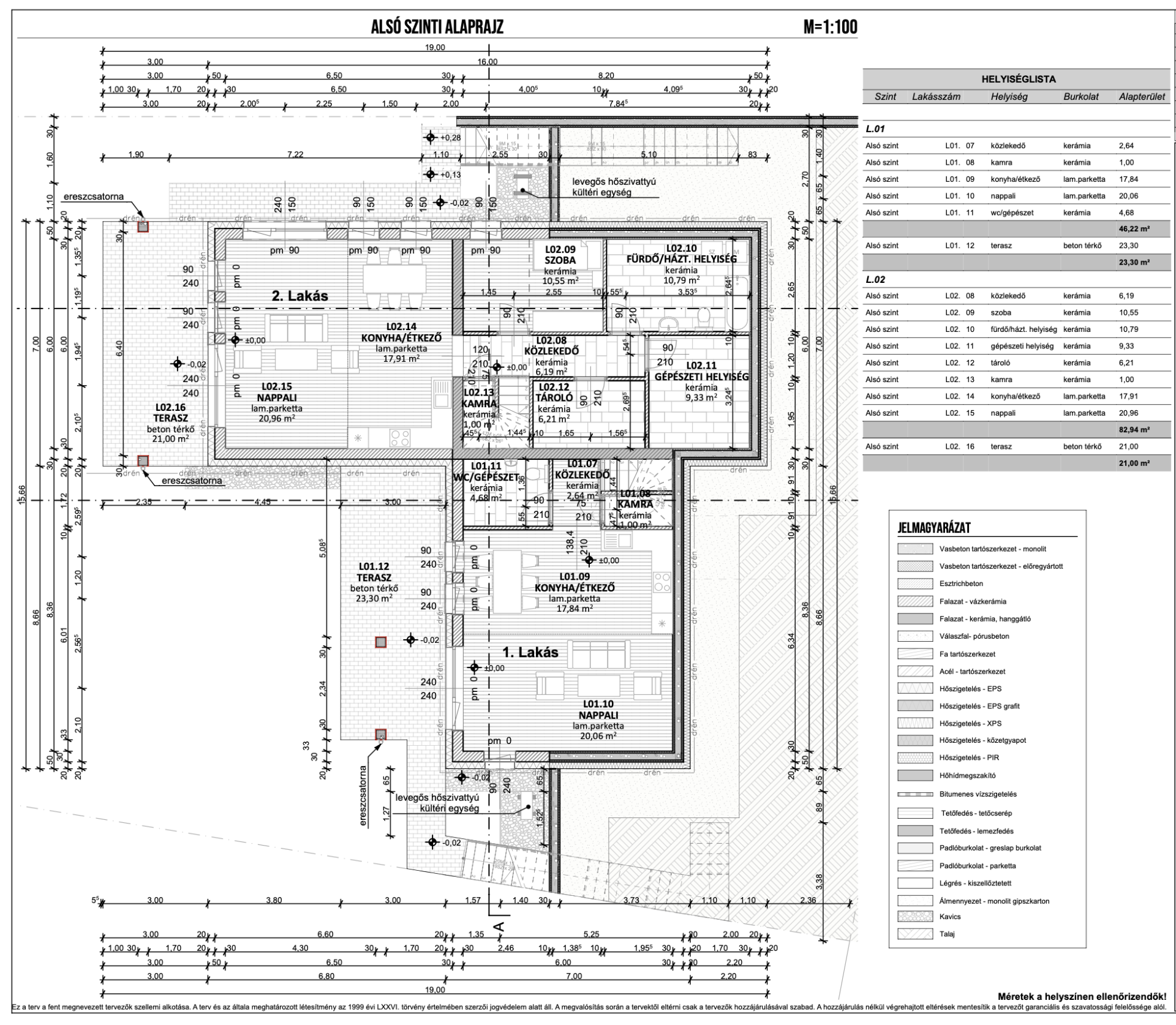
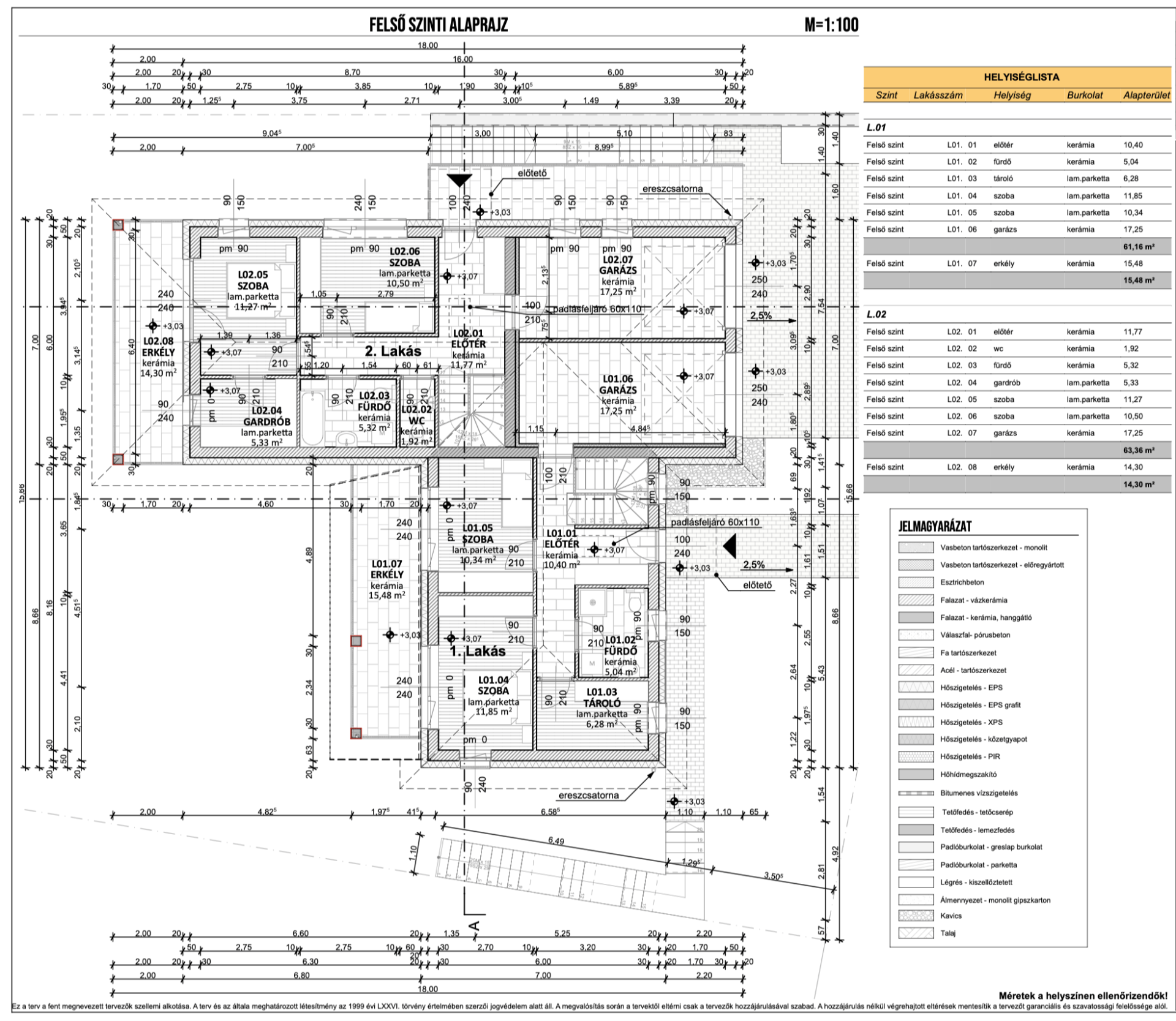
Az L1-es lakás 118 m² hasznos alapterületű, átgondolt elrendezésű otthon, amelyhez 420 m²-es saját telekrész, tágas terasz, erkély és saját garázs tartozik.
Az alsó szinten tágas amerikai konyhás nappali kapott helyet közvetlen teraszkapcsolattal, valamint egy toalett/gépészeti helyiség és kamra. A felső szinten a garázsból közvetlen átjárás biztosított a lakótérbe, ahol két hálószoba, fürdőszoba, valamint tároló biztosítja a kényelmet és a praktikus mindennapokat. A tágas erkélyre mindkét hálószobából kiléphetünk.
Műszaki tartalom:
- Porotherm 30 N+F tégla falazat
- 20 cm homlokzati hőszigetelés
- 3 rétegű, fokozott hőszigetelésű nyílászárók
- Hőszivattyús padlófűtés
- Monolit vasbeton födém
- Antracit színű cserépfedés
- Minőségi greslap és laminált parketta burkolatok
- Térkövezett terasz és kocsibeálló
A Mályva Ikerház tökéletes választás mindazoknak, akik prémium minőségű, modern otthonban szeretnének élni, csendes, zöldövezeti környezetben, mégis Tatabánya minden kényelmi szolgáltatásához közel.
Várható átadás: 2026. IV. Negyedév
Foglalja le most bevezető áron, alakítsa saját ízlésére a belső dizájnt és vásároljon illetékmentesen! (-4%)
Irodánkban teljeskörű pénzügyi tanácsadással és kedvezményes jogi háttérrel állunk rendelkezésére!
Eladó prémium, új építésű kertes családi ház, Tatabánya
eladoikerhazTatabánya
Alaprajzok


Az ingatlan jellemzői
Alapadatok
- Ingatlantípus
- ikerház
- Státusz
- Eladó
- Irányár
- 119 000 000 Ft
- Város
- Tatabánya

