💼 Vállalkozóknak, befektetőknek, fejlesztőknek – kivételes lehetőség Tatabányán!
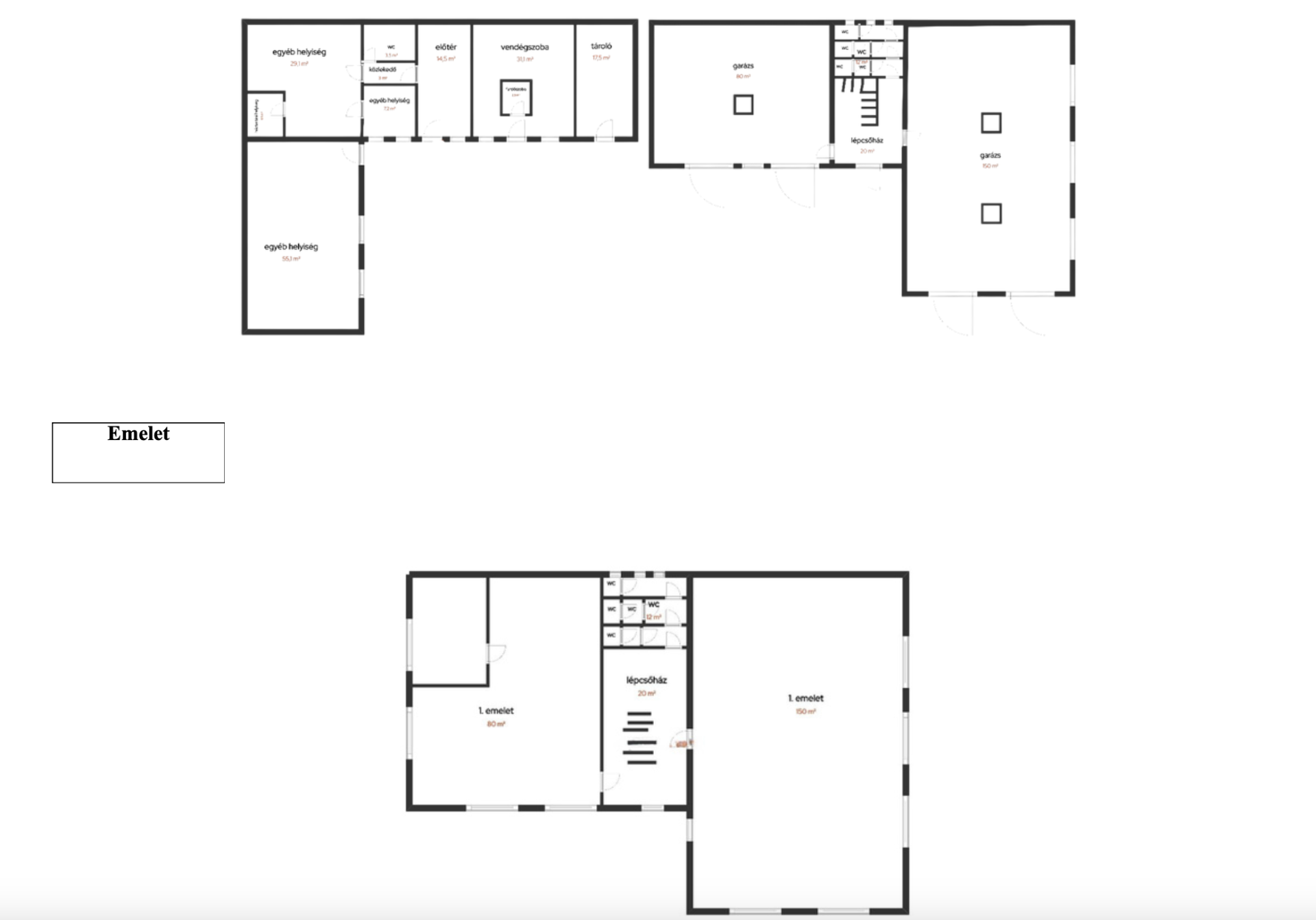
Tatabánya frekventált, Sárbereki részén eladó egy összesen 698 m² alapterületű, modern, téglaépítésű, felújított ingatlan, 1571 m²-es telken, 14 férőhelyes garázzsal.
Jelenleg autókereskedésként működik, de kiváló elhelyezkedése és adottságai miatt számos üzleti tevékenységre is alkalmas, mint például:
– irodaház,
– munkásszálló,
– raktár,
– vagy vállalkozás központi telephelye.
Az épület két éve teljes körű felújításon esett át: prémium minőségű nyílászárók, új hőszigetelés és modern homlokzati színezés került kialakításra, így az ingatlan azonnal használatba vehető, karbantartást nem igényel.
Főbb paraméterek – VT4 övezet:
* Beépítési mód: oldalhatáron álló
* Megengedett legnagyobb beépítettség: 40%
* Terepszint alatti legnagyobb beépítettség: 40%
* Megengedett legnagyobb épületmagasság: 5,5 m
* Legkisebb zöldfelületi arány: 30%
📍 Kiváló lokáció, sokoldalú hasznosíthatóság, biztos befektetés!
Az ilyen méretű, felújított telephely ritkaság Tatabányán.
További információkért keressen bizalommal!
Irodánk banksemleges hitelügyintézéssel, egyedi pénzügyi tanácsadással és kedvezményes ügyvédi háttérrel áll rendelkezésére.
Eladó családi ház, telephely Tatabánya
eladocsaladi_hazTatabánya
Alaprajzok

Az ingatlan jellemzői
Alapadatok
- Ingatlantípus
- családi ház
- Státusz
- Eladó
- Irányár
- 385 000 000 Ft
- Város
- Tatabánya
Méretek
- Alapterület (m²)
- 698 m²
- Telek (m²)

